- Büroflächen /
- Düsseldorf /
- OBRKSSL – Ria-Thiele-Straße 2-2a
Kennung: 7923
OBRKSSL – Ria-Thiele-Straße 2-2a
40549 Düsseldorf
Details
Eckdaten
Stellplätze
Flächenaufstellung
| Geschoss | Bauteil | Flächenart | Freie Fläche | Teilbar ab | Miete von | Miete bis | Bezug | |
|---|---|---|---|---|---|---|---|---|
| 5.OG* | B3 | Büro | 580,00 m² | 18,00 €/m² | Q4 2027 | |||
| 5.OG** | Büro | 380,05 m² | kurzfristig | |||||
| Terrasse | 98,57 m² | kurzfristig | ||||||
| 4.OG* | B3 | Büro | 711,00 m² | 18,00 €/m² | kurzfristig | |||
| 4.OG* | R2 - A2 | Büro | 1.105,00 m² | 520,00 m² | 18,00 €/m² | kurzfristig | ||
| 3.OG* | B3 | Büro | 711,00 m² | 18,00 €/m² | kurzfristig | |||
| 3.OG* | R2 | Büro | 580,00 m² | 18,00 €/m² | kurzfristig | |||
| 3.OG | A2 | Büro | 526,00 m² | 23,50 €/m² | kurzfristig | |||
| 2.OG* | B3 | Büro | 711,00 m² | 18,00 €/m² | kurzfristig | |||
| 2.OG* | R2 | Büro | 580,00 m² | 18,00 €/m² | kurzfristig | |||
| 2.OG | A2 | Büro | 525,00 m² | 23,50 €/m² | kurzfristig | |||
| 2.OG | R3 - A3 | Büro | 1.370,00 m² | 667,00 m² | 23,50 €/m² | kurzfristig | ||
| 1.OG* | Büro | 711,00 m² | 18,00 €/m² | kurzfristig | ||||
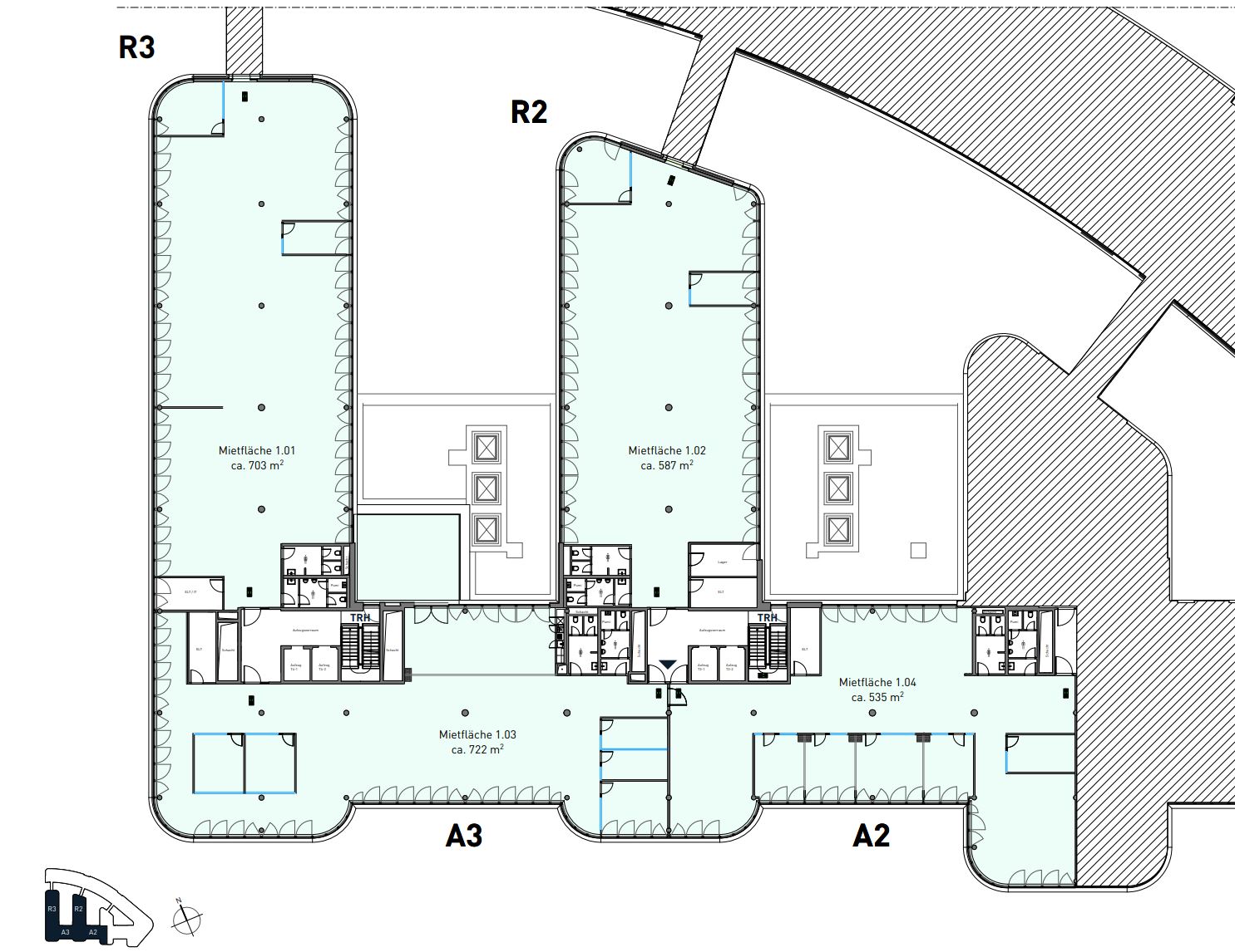
| 1.OG | R3 - A2 | Büro | 2.547,00 m² | 535,00 m² | 23,50 €/m² | kurzfristig | ||
| Terrasse | 55,00 m² | kurzfristig |
Zusatzflächen
| Geschoss | Flächenart | Freie Fläche | Miete von |
|---|---|---|---|
| UG | Archiv | 250,00 m² | |
| Innen | PKW Stellplätze | ca. 29 Stk. | 160,00 €/Stk. |
Ausstattung
Festgelegte Ausstattung
Variable Ausstattung
Grundrisse
Lage und Anbindung
Energiekennzahlen
Zusatzinformation
- * Bei den Flächen handelt es sich um eine Untervermietung mit einer Vertragslaufzeit bis September 2030. Die Flächen sind provisionspflichtig für den Mieter.
- ** Bei den Flächen handelt es sich um eine Untervermietung mit einer Vertragslaufzeit bis September 2030. Die Fläche ist provisionspflichtig für den Mieter.
Die Anmietung ist für den Mieter teilweise provisionspflichtig. Bitte beachten Sie unsere Allgemeine Geschäftsbedingungen.
















































