- Büroflächen /
- Düsseldorf /
- L 4 – Lippestraße 4
Kennung: 7264
L 4 – Lippestraße 4
40221 Düsseldorf
Details
Eckdaten
Flächenaufstellung
| Geschoss | Bauteil | Flächenart | Freie Fläche | Teilbar ab | Miete von | Miete bis | Bezug | |
|---|---|---|---|---|---|---|---|---|
| 5.OG | Büro | 810,00 m² | auf Anfrage | |||||
| Terrasse | 240,00 m² | auf Anfrage | ||||||
| 4.OG | Büro | 1.068,00 m² | 570,00 m² | auf Anfrage | ||||
| 3.OG | Büro | 1.061,00 m² | 570,00 m² | auf Anfrage | ||||
| 2.OG | Büro | 1.080,00 m² | 784,00 m² | auf Anfrage | ||||
| 1.OG* | Büro | 1.100,00 m² | 784,00 m² | kurzfristig | ||||
| EG | Büro | 1.460,00 m² | 21,00 €/m² | kurzfristig |
Ausstattung
Festgelegte Ausstattung
Variable Ausstattung
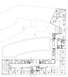
Grundrisse
Lage und Anbindung
Energiekennzahlen
Zusatzinformation
- Das Erdgeschoss verfügt über einen separaten und ebenerdigen Eingang.
- * Bei den Flächen handelt es sich um Untermietflächen. Ein Direktmietverhältnis mit dem Eigentümer ist auch möglich.























