Büroflächen/ Dortmund/ OPR199 – Rheinlanddamm 199
Kennung: 74884
OPR199 – Rheinlanddamm 199
44139 Dortmund
Details
Eckdaten
Stellplätze
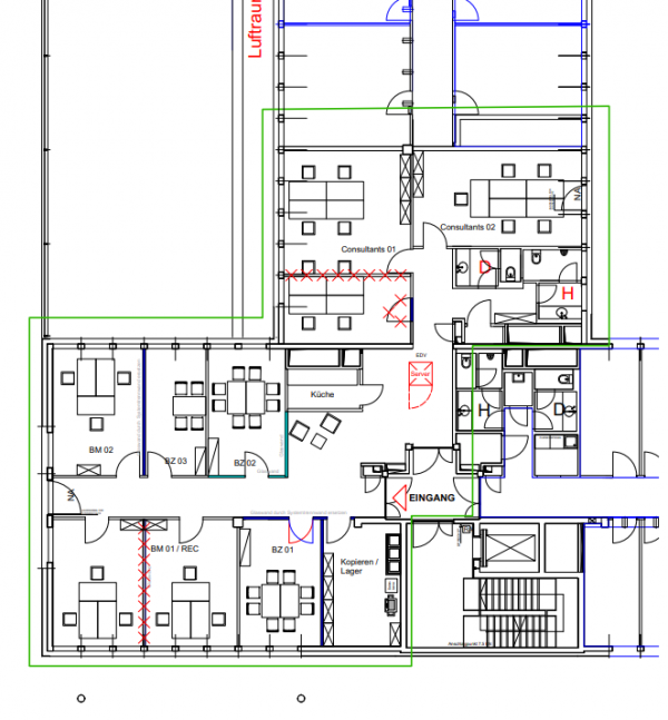
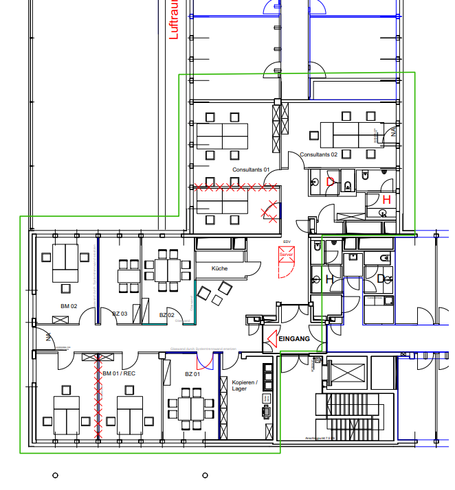
Flächenaufstellung
| Geschoss | Bauteil | Flächenart | Freie Fläche | Teilbar ab | Miete von | Miete bis | Bezug | |
|---|---|---|---|---|---|---|---|---|
| 4.OG | Büro | 315,66 m² | 13,50 €/m² | auf Anfrage | ||||
| 1.OG | Büro | Büro | 332,75 m² | 13,50 €/m² | auf Anfrage | |||
| EG | Büro | 272,50 m² | 13,50 €/m² | |||||
| 4.OG | Büro | 276,05 m² | 13,50 €/m² | kurzfristig |
Ausstattung
Festgelegte Ausstattung
Variable Ausstattung
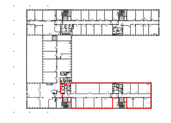
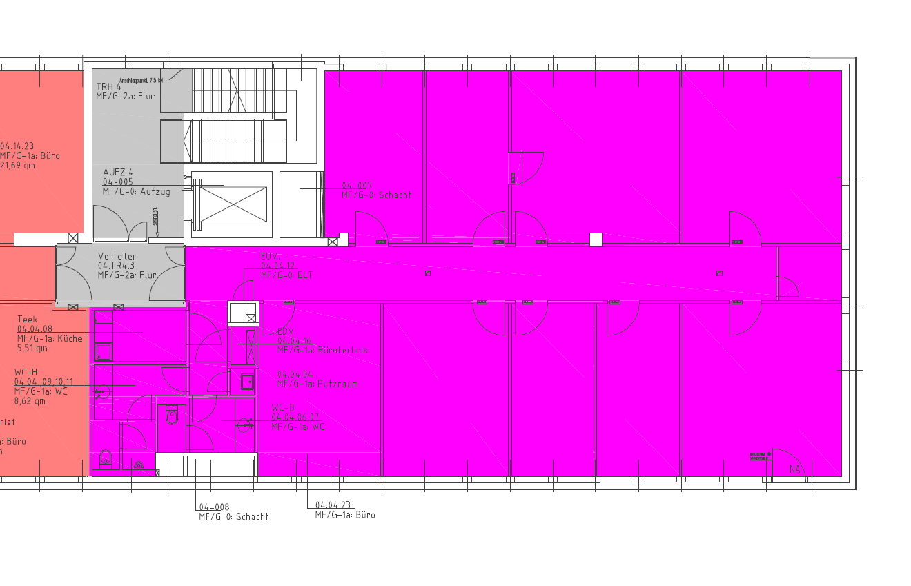
Grundrisse
Lage und Anbindung
Energiekennzahlen
Zusatzinformation
- Gastronomiefläche
















