- Büroflächen /
- Düsseldorf /
- Plange Mühle – Plange Mühle 1-6
Kennung: 7280
Plange Mühle – Plange Mühle 1-6
40221 Düsseldorf
Details
Eckdaten
Stellplätze
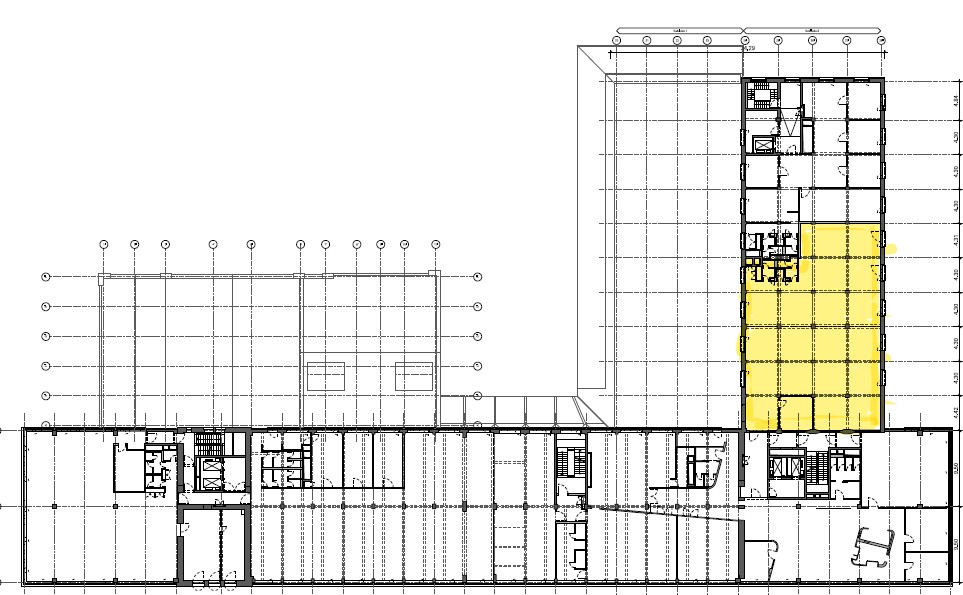
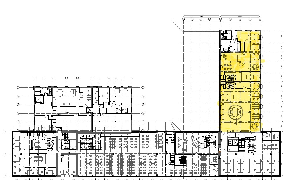
Flächenaufstellung
| Geschoss | Bauteil | Flächenart | Freie Fläche | Teilbar ab | Miete von | Miete bis | Bezug | |
|---|---|---|---|---|---|---|---|---|
| 8.OG | Nr. 5 | Büro | 86,00 m² | 19,00 €/m² | kurzfristig | |||
| 7.OG | Nr. 5 | Büro | 84,00 m² | 19,00 €/m² | kurzfristig | |||
| 6.OG | Nr. 2 | Büro | 455,00 m² | 19,00 €/m² | kurzfristig | |||
| 5. - 6.OG | Nr. 5 | Büro | 1.021,00 m² | 20,00 €/m² | kurzfristig | |||
| 4.OG | Nr. 2 - 2.2 | Büro | 380,00 m² | 18,00 €/m² | 01.07.2026 | |||
| 4.OG | Nr. 5 | Büro | 517,00 m² | 20,00 €/m² | kurzfristig | |||
| 3.OG | Nr. 2 -2.2 | Büro | 444,00 m² | 18,00 €/m² | kurzfristig | |||
| 3.OG | Nr. 2.1 | Büro | 296,00 m² | 18,00 €/m² | kurzfristig | |||
| 2.OG | BT 1 2.2 | Büro | 394,00 m² | 18,00 €/m² | kurzfristig | |||
| 2.OG | BT 4.1-4.2 | Büro | 800,00 m² | 18,00 €/m² | kurzfristig | |||
| 1.OG | Nr. 2 - 2.1 | Büro | 330,00 m² | 20,00 €/m² | kurzfristig | |||
| 1.OG | Büro | 451,00 m² | 18,00 €/m² | kurzfristig | ||||
| 1.OG | Nr. 2 - 2.2 | Büro | 390,00 m² | 20,00 €/m² | kurzfristig |
Zusatzflächen
| Geschoss | Flächenart | Freie Fläche | Miete von |
|---|---|---|---|
| ca. 20 Stk. | 80,00 €/Stk. |






























































































