- Büroflächen /
- Düsseldorf /
- Immermann Tower – Immermannstraße 40
Kennung: 7410
Immermann Tower – Immermannstraße 40
40210 Düsseldorf
Details
Eckdaten
Stellplätze
Flächenaufstellung
| Geschoss | Bauteil | Flächenart | Freie Fläche | Teilbar ab | Miete von | Miete bis | Bezug | |
|---|---|---|---|---|---|---|---|---|
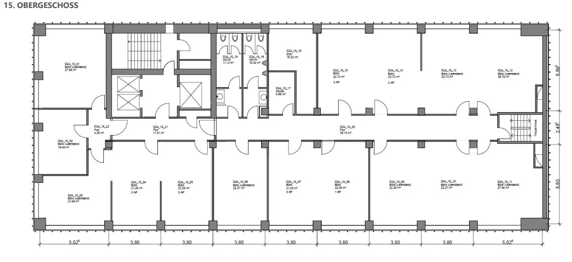
| 15.OG | Büro | 485,00 m² | 13,00 €/m² | kurzfristig | ||||
| 14. OG | Büro | 485,00 m² | 13,00 €/m² | |||||
| 11. OG | Büro | 485,00 m² | 13,00 €/m² | |||||
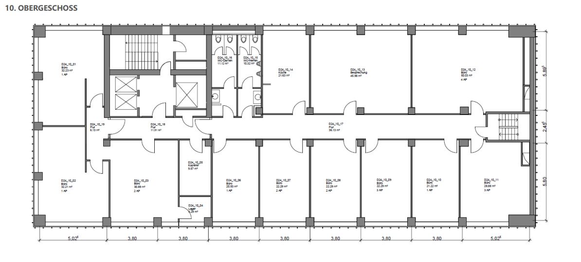
| 10.OG | Büro | 485,00 m² | 13,00 €/m² | kurzfristig | ||||
| 9.OG | Büro | 485,00 m² | 13,00 €/m² | kurzfristig | ||||
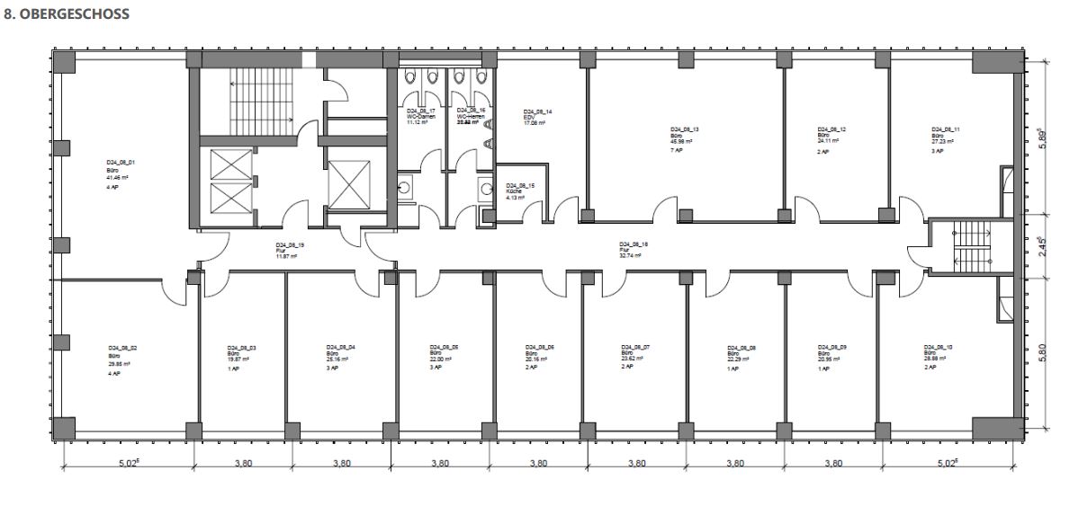
| 8.OG | Büro | 485,00 m² | 13,00 €/m² | kurzfristig | ||||
| 7.OG | Büro | 485,00 m² | 13,00 €/m² | kurzfristig | ||||
| 6.OG | Büro | 485,00 m² | 12,00 €/m² | kurzfristig | ||||
| 5.OG | Büro | 485,00 m² | 12,00 €/m² | kurzfristig | ||||
| 2.OG | Büro | 485,00 m² | 12,00 €/m² | kurzfristig | ||||
| 1.OG | Büro | 435,00 m² | 12,00 €/m² | kurzfristig |
Zusatzflächen
| Geschoss | Flächenart | Freie Fläche | Miete von |
|---|---|---|---|
| Innen | PKW Stellplätze | ca. 2 Stk. | 60,00 €/Stk. |
Ausstattung
Festgelegte Ausstattung
Variable Ausstattung
Grundrisse
Lage und Anbindung
Energiekennzahlen
Zusatzinformation
- Die Mietverträge werden aktuell maximal mit einer Laufzeit bis zum 31.12.2029 abgeschlossen.













