Limbecker Straße 20-28




Energiekennzahlen
Ausstattung
Festgelegte Ausstattung
außenliegender Sonnenschutz
öffenbare Fenster
Personenaufzug
Doppel-/Hohlraumboden
Variable Ausstattung
Bodenbelag nach Mieterwunsch
Cat 7 Verkabelung
Raumaufteilung teilweise flexibel
Küche
A40
Essen HBF
Düsseldorf Airport (DUS)
U11 / U17 / U18
145 / 166 / 155 / 154 / NE1 / NE2
S1 / S2 / S3 / S6 / S9
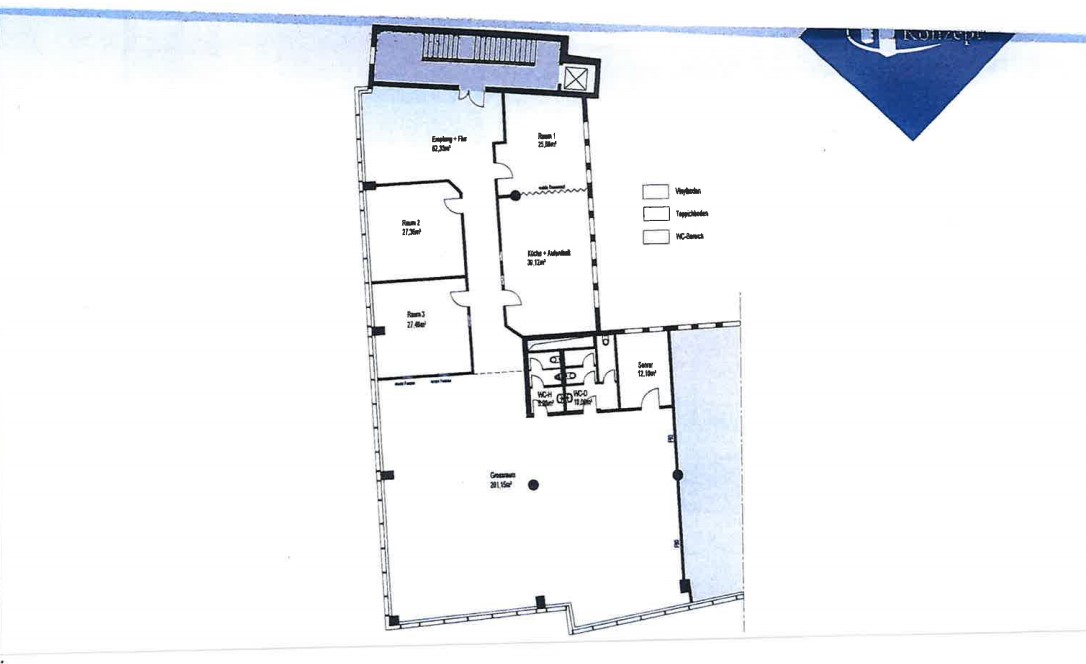
Mietflächen
| {{firstValue(area, 'floor')}} | {{firstValue(area, 'buildingPart')}} | Bürofläche | {{ areaFromTo(firstValue(area, 'officeSpace')) }} | {{ areaFromTo(getMinPartOfficeSpace(area)) }} | {{priceFromTo(firstValue(area, 'officeSpaceRentPerSqmFrom'))}}/m² auf Anfrage | {{priceFromTo(firstValue(area, 'officeSpaceRentPerSqmTo'))}}/m² | {{getFreeFrom( area) }} |
Zusatzinformation
Die Mietpreisangaben verstehen sich jeweils zzgl. Nebenkosten und der gesetzlich gültigen Umsatzsteuer pro Monat und sind abhängig von der gewünschten Ausstattung, Vertragslaufzeit und der Bonität des Mieters.
Alle genannten Informationen beruhen auf Angaben des Vermieters / Eigentümers / Projektentwicklers. ANTEON übernimmt keine Gewähr für die Richtigkeit dieser Angaben. Irrtum und Zwischenvermietung sind vorbehalten.

