Büroflächen/ Düsseldorf/ Steinstraße 27
Kennung: 7318
Steinstraße 27
40210 Düsseldorf
Details
Eckdaten
Stellplätze
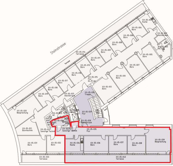
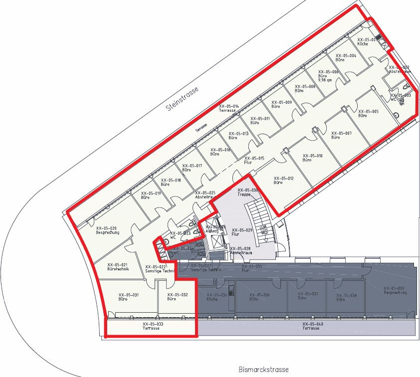
Flächenaufstellung
| Geschoss | Bauteil | Flächenart | Freie Fläche | Teilbar ab | Miete von | Miete bis | Bezug | |
|---|---|---|---|---|---|---|---|---|
| 4.OG | Büro | 249,00 m² | 18,00 €/m² | kurzfristig | ||||
| 5.OG | Büro | 137,00 m² | 19,00 €/m² | 01.06.2026 | ||||
| Terrasse | 33,00 m² | 01.06.2026 | ||||||
| 5.OG | Büro | 365,00 m² | 19,00 €/m² | kurzfristig | ||||
| Terrasse | 68,00 m² | kurzfristig |
Zusatzflächen
| Geschoss | Flächenart | Freie Fläche | Miete von |
|---|---|---|---|
| Innen | PKW Stellplätze | ca. 2 Stk. | 110,00 €/Stk. |

















































































