- Büroflächen /
- Düsseldorf /
- Walzstahlhaus – Kasernenstraße 36
Kennung: 7724
Walzstahlhaus – Kasernenstraße 36
40213 Düsseldorf
Details
Eckdaten
Stellplätze
Flächenaufstellung
| Geschoss | Bauteil | Flächenart | Freie Fläche | Teilbar ab | Miete von | Miete bis | Bezug | |
|---|---|---|---|---|---|---|---|---|
| 2.OG | Nord+Ost+Süd | Büro | 1.380,00 m² | 36,00 €/m² | Q1 2028 | |||
| EG | Nord+Ost+Süd | Büro | 1.098,00 m² | 34,00 €/m² | Q1 2028 | |||
| 4.OG | Nord+Ost+Süd | Büro | 1.380,00 m² | 36,00 €/m² | Q1 2028 | |||
| 6.OG | Nord+Ost+Süd | Büro | 1.223,00 m² | 38,00 €/m² | Q1 2028 | |||
| 3.OG | Nord+Ost+Süd | Büro | 1.380,00 m² | 36,00 €/m² | Q1 2028 | |||
| 5.OG | Nord+Ost+Süd | Büro | 1.380,00 m² | 38,00 €/m² | Q1 2028 | |||
| 1.OG | Nord+Ost+Süd | Büro | 1.365,00 m² | 34,00 €/m² | Q1 2028 |
Zusatzflächen
| Geschoss | Flächenart | Freie Fläche | Miete von |
|---|---|---|---|
| UG | Archiv | 895,00 m² | 10,00 €/m² |
| Innen | PKW Stellplätze | ca. 26 Stk. | 200,00 €/Stk. |
Ausstattung
Festgelegte Ausstattung
Variable Ausstattung
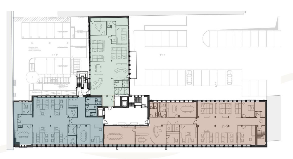
Grundrisse
Lage und Anbindung
Energiekennzahlen
Der Energieausweis gemäß Gebäudeenergiegesetz (GEG) befindet sich derzeit in Erstellung und wird spätestens bei Besichtigung vorgelegt
Zusatzinformation
- Technische Sanierung eines denkmalgeschützten Gebäudes
- Umfangreiche modernisierung nach ESG-Standards
- Smart Building






