Büroflächen/ Düsseldorf/ loftworks – Reisholzer Werftstraße 68
Kennung: 15156
loftworks – Reisholzer Werftstraße 68
40589 Düsseldorf
Details
Eckdaten
Stellplätze
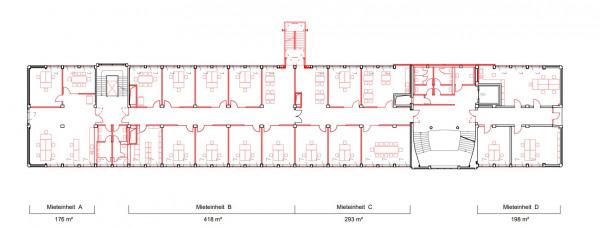
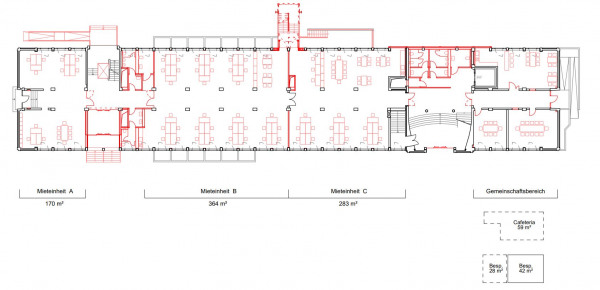
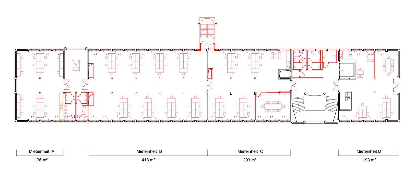
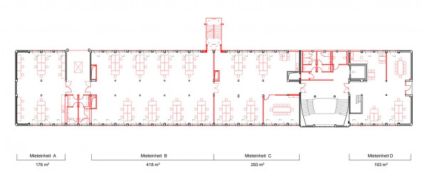
Flächenaufstellung
| Geschoss | Bauteil | Flächenart | Freie Fläche | Teilbar ab | Miete von | Miete bis | Bezug | |
|---|---|---|---|---|---|---|---|---|
| 5.OG* | MB D | Büro | 161,00 m² | 14,00 €/m² | 16,00 €/m² | Q1 2026 | ||
| 4.OG* | MB A-D | Büro | 1.080,00 m² | 176,00 m² | 14,00 €/m² | 16,00 €/m² | Q1 2026 | |
| 2.OG | MB A-D | Büro | 1.085,00 m² | 176,00 m² | 14,00 €/m² | 16,00 €/m² | Q1 2026 | |
| 1.OG | MB A-D | Büro | 1.085,00 m² | 176,00 m² | 14,00 €/m² | 16,00 €/m² | Q1 2026 | |
| 3.OG | MB A-D | Büro | 1.085,00 m² | 176,00 m² | 14,00 €/m² | 16,00 €/m² | Q1 2026 | |
| EG | MB A-D | Büro | 1.020,00 m² | 170,00 m² | 14,00 €/m² | 16,00 €/m² | Q1 2026 |
Ausstattung
Festgelegte Ausstattung
Variable Ausstattung
Grundrisse
Lage und Anbindung
Energiekennzahlen
Zusatzinformation
- * Das 4. und 5.OG ist nur zusammenhängend anmietbar.
- 35 Ladepunkte für E-Autos und 30 für E-Bikes auf dem Gelände vorhanden









































































