Halle 30
Derendorfer Allee 12




Energiekennzahlen
Ausstattung
Festgelegte Ausstattung
außenliegender, elektrischer Sonnenschutz
öffenbare Fenster
Personenaufzug
Klimaanlage
Variable Ausstattung
Epoxidharzboden
Pendelleuchten
Raumaufteilung flexibel
Küche
A44 / A52
Düsseldorf HBF
Düsseldorf Airport (DUS)
729 / 834
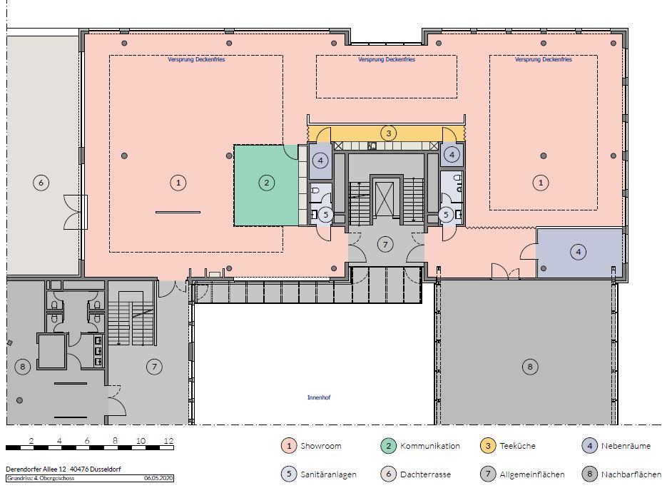
Mietflächen
| {{firstValue(area, 'floor')}} | {{firstValue(area, 'buildingPart')}} | Bürofläche | {{ areaFromTo(firstValue(area, 'officeSpace')) }} | {{ areaFromTo(getMinPartOfficeSpace(area)) }} | {{priceFromTo(firstValue(area, 'officeSpaceRentPerSqmFrom'))}}/m² auf Anfrage | {{priceFromTo(firstValue(area, 'officeSpaceRentPerSqmTo'))}}/m² | {{getFreeFrom( area) }} |
Zusatzflächen
| Geschoss | Bauteil | Flächenart | Freie Fläche | Teilbar ab | Miete von | Miete bis | Bezug | |
|---|---|---|---|---|---|---|---|---|
| Innen | PKW Stellplätze | ca. 5 Stk. | auf Anfrage |
Zusatzinformation
Die Mietpreisangaben verstehen sich jeweils zzgl. Nebenkosten und der gesetzlich gültigen Umsatzsteuer pro Monat und sind abhängig von der gewünschten Ausstattung, Vertragslaufzeit und der Bonität des Mieters.
Alle genannten Informationen beruhen auf Angaben des Vermieters / Eigentümers / Projektentwicklers. ANTEON übernimmt keine Gewähr für die Richtigkeit dieser Angaben. Irrtum und Zwischenvermietung sind vorbehalten.

